812 Calista Flat
812 Calista Flat
SEE ALL PHOTOS
812 Calista Flat
812 Calista Flat
Listed by Ben M Smith-Gulley with Christies International Real Estate Bluegrass
Sold

812 Calista Flat

812 Calista Flat, Lexington, KY 40511

$498,480
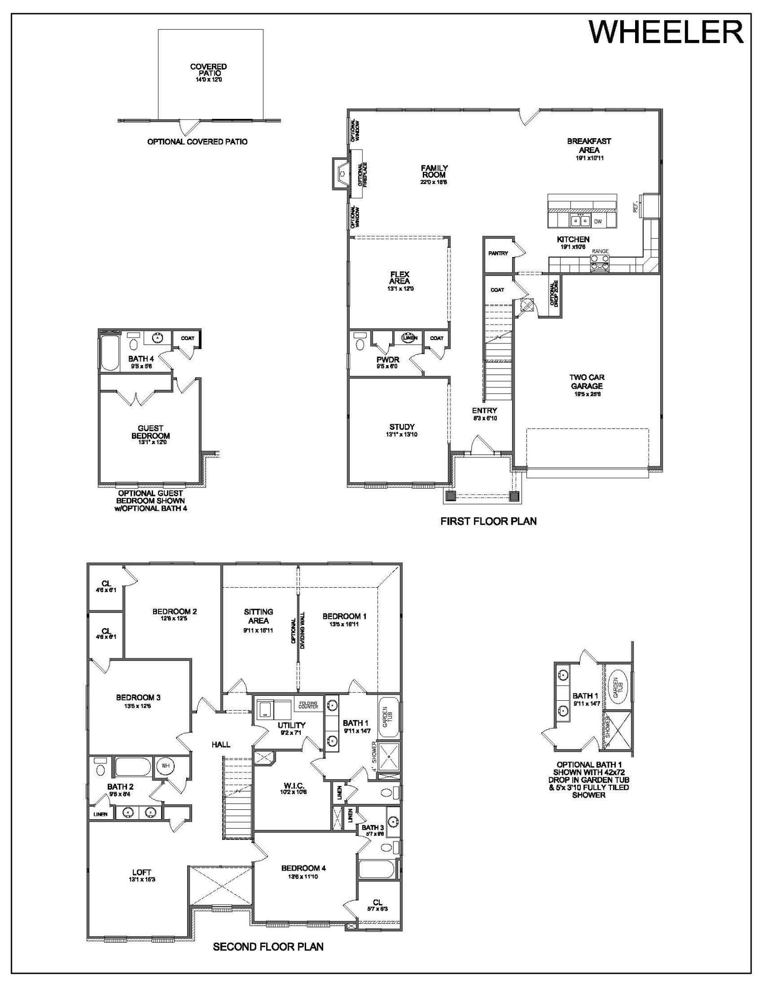
The Wheeler is a spacious home with a guest bedroom and flex area on the first floor. The living areas on the first floor follow an open concept design, with an island kitchen and spacious breakfast area adjoining a large family room with optional fireplace, all overlooking the rear yard. A drop zone option is available at the entry from the garage for additional organization. The upstairs primary bedroom suite includes a sitting area and luxurious bath with double bowl vanity, fully tiled shower, and garden tub. The utility room with folding counter can be accessed from the primary bedroom's large walk-in closet and the second-floor hall. Bedrooms #2 and #3 share a hall bath, while bedroom #4 has its own private bath with tub/shower combo. A large central loft completes the second floor. Additional features include a covered front porch and hip roof design.

5
beds

4
baths

3,557 Sq.Ft. LIVING AREA

8,719 Sq.Ft. lot

Ben Smith-Gulley

Ben Smith-Gulley

Features & Amenities

Interior

  • total bedrooms5
  • Total bathrooms4
  • full bathrooms4
  • Laundry room Electric Dryer Hookup, Washer Hookup
  • Flooring Carpet, Other
  • Fireplace Family Room
  • APPLIANCES Dishwasher, Disposal, Range
  • other interior Features Walk-In Closet(s)

Area & Lot

  • Status Sold
  • Living Area3,557 Sq.Ft.
  • Total Area3,557 Sq.Ft.
  • Lot Area8,719 Sq.Ft.
  • MLS® ID24026051
  • TypeResidential
  • YEAR BUILT2024
  • NeighborhoodLexington
  • View DescriptionNeighborhood
  • Elementary SchoolCoventry Oak
  • Middle SchoolLeestown
  • High SchoolBryan Station
  • School DistrictFayette County - 1

Exterior

  • STORIES2
  • Garage Space2.0
  • water SourcePublic
  • roofDimensional Style
  • parkingAttached Garage, Driveway, Garage Door Opener
  • HEAT TYPEForced Air, Zoned
  • AIR CONDITIONINGElectric, Zoned
  • sewerPublic Sewer
  • SubstructureSlab

Financial

  • Sales Price$498,480
  • HOA $200/yr

Lexington

Fayette County

Explore

LET ME TELL YOUR STORY

Whether you're thinking about listing your property, beginning your search for a new one, or have a question about the area, feel free to contact Alex.

Follow Me on Instagram