2813 Seneca Lake Road
Pending

2813 Seneca Lake Road

2813 Seneca Lake Road, Lexington, KY 40509

$515,284
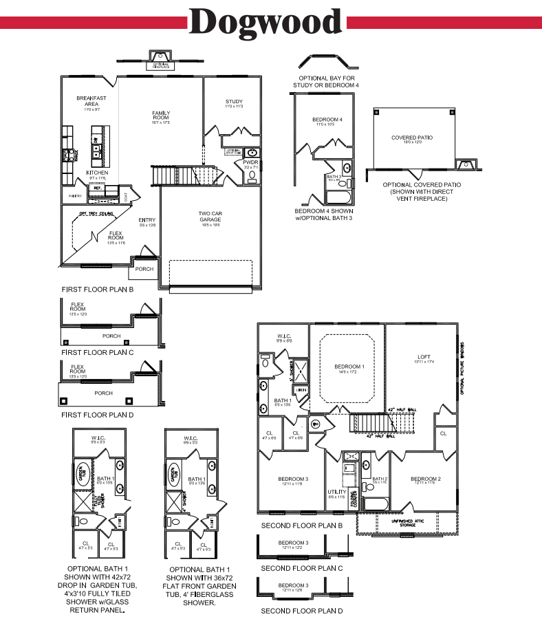
The two-story Dogwood plan offers lots of room to spread out, with a guest suite on the first floor and a primary bedroom suite plus two bedrooms and loft on the second floor. The flex room off the entry can serve as an office or formal living or dining room. The kitchen includes a step-in pantry and island with counter dining, opening to the large central Family Room. The hall from the garage offers semi-private access to the guest suite area, and an optional drop zone can keep busy families organized.
The upstairs primary bedroom includes a trey ceiling and the bath has a double bowl vanity, 5' shower, linen closet, and dual closets. Two bedrooms with generously sized closets, a hall bath, a utility room with folding counter, and large loft complete the upstairs. This plan includes a walk-in unfinished attic storage area off bedroom #2.

4
beds

3
baths

2,639 Sq.Ft. LIVING AREA

7,150 Sq.Ft. lot

Katie Wilcox

Katie Wilcox

Features & Amenities

Interior

  • total bedrooms4
  • Total bathrooms3
  • full bathrooms3
  • Laundry room Electric Dryer Hookup, Washer Hookup
  • Flooring Carpet, Other
  • Fireplace Family Room
  • APPLIANCES Dishwasher, Disposal, Range
  • other interior Features Walk-In Closet(s)

Area & Lot

  • Status Pending
  • Living Area2,639 Sq.Ft.
  • Total Area2,639 Sq.Ft.
  • Lot Area7,150 Sq.Ft.
  • MLS® ID25005009
  • TypeResidential
  • YEAR BUILT2025
  • NeighborhoodLexington
  • View DescriptionNeighborhood
  • Elementary SchoolBrenda Cowan
  • Middle SchoolCrawford
  • High SchoolFrederick Douglass
  • School DistrictFayette County - 1

Exterior

  • STORIES2
  • Garage Space2.0
  • water SourcePublic
  • roofDimensional Style
  • parkingAttached Garage, Driveway, Garage Door Opener
  • HEAT TYPEForced Air, Zoned
  • AIR CONDITIONINGElectric, Zoned
  • sewerPublic Sewer
  • SubstructureSlab

Financial

  • Sales Price$515,284
  • HOA $225/yr
image

Schedule a Showing

I would love to show you this beautiful property. Please select your preferred date and time below. I will be in touch shortly to confirm your appointment.

Schedule a Showing

I would love to show you this beautiful property. Please select your preferred date and time below. I will be in touch shortly to confirm your appointment.

Thank you for your interest in 2813 Seneca Lake Road, Lexington, KY 40509. We are reviewing your request and will be in touch shortly!

Mortgage Calculator

Estimate your monthly mortgage payment, including the principal and interest, property taxes, and HOA. Adjust the values to generate a more accurate rate.

All estimates are provided for informational purposes only. Actual amounts may vary.
$0,000 Your Payment 20 15 65
$0,000 Your Payment

Lexington

Fayette County

Explore

LET ME TELL YOUR STORY

Whether you're thinking about listing your property, beginning your search for a new one, or have a question about the area, feel free to contact Alex.

Follow Me on Instagram